Umbau Zimmerappartements, Zürich
Dienstleistung
Umbau

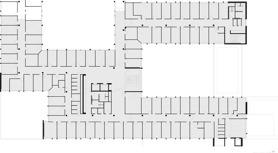
Die Mieteinheiten 9,10,14 im 2. Obergeschoss der Schaffhauserstrasse 550, die zu einer Fläche zusammengelegt wurden, konnten durch neue Oberflächen aufgefrischt und den Bedürfnissen des Mieters Businesshome Zürich angepasst werden.

Durch die neue Belegung der Räumlichkeiten mit Zimmerappartements wurden Anpassungen im Grundrisslayout notwendig.

Von den schlichten 73 1-Zimmer-Appartements wurden 3 Zimmer zu einem Studio mit eigener Nasszelle und Kleinküche ausgebaut, welche einen gehobenen Standard bieten. Die übrigen Zimmer teilen sich die zentralen Nasszellen und Küchen, die gleichfalls als Ort der Begegnung dienen. In einer gemeinschaftlichen, zentral gelegenen Waschküche kann persönliche Wäsche gewaschen werden.

Alle Businesshome-Appartements wurden funktional mit einem Bett, Schrank und Tisch ausgestattet und bieten somit eine schlichte, aber komfortable Wohnzone für ein temporäres Wohnen in der Stadt.

Pläne

minus icon plus icon